Menu
Un projet réalisé par :Adrien Richy  Architecte à Bordeaux
Adrien Richy
Accueil Projets Échoppe B

Échoppe Bordelaise du quartier de Nansouty réhabilitée et surélevée.
surface: 125 m2 + 15 m2 de terrasse
coût global: 160 000€TTC (hors honoraires)
année de construction: 2011
durée des travaux: 9 mois

Échoppe B

Souffrant d'un manque de lumière, d'espace et d'appropriation des espaces, cette échoppe a été surélevée tout en gardant à la fois son emprise au sol et sa hauteur de façade côté rue.
Le principe a été d'amener la lumière par le jardin en façade ouest sur toute la profondeur de la maison tout en offrant la possibilité aux deux chambres nouvellement créées à l'étage d'avoir un contact avec l'extérieur.

  • Échoppe B : image_projet_mini_46055
  • Échoppe B : image_projet_mini_46049
  • Échoppe B : coupe état des lieux
  • Échoppe B : photo origine

    La façade sur jardin dans son état d'origine.

  • Échoppe B : plan RDC
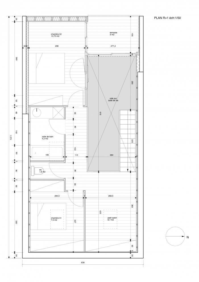
  • Échoppe B : plan R+1
  • Échoppe B : coupe
  • Échoppe B : travaux01

    Les travaux ont débutés. La toiture a été déposée. Le mur de pierre séparant cuisine, chambre et séjour est en partie démoli.

  • Échoppe B : travaux02

    Les fondations en fond de parcelle et la dalle ont été refaites.
    Le mur de pierre déposé a été réutilisé pour recréer un mur contre lequel viendra s'adosser la nouvelle cuisine.

  • Échoppe B : structure métallique

    Une structure métallique va permettre la création d'un étage.

  • Échoppe B : travaux04

    Vue de la terrasse depuis le jardin avant la pose de la terrasse en lame de sapin rouge.

  • Échoppe B : travaux03

    Le solarium vu depuis la chambre principal avant la pose des lames de bois en chêne.

  • Échoppe B : passerelle

    distribution des pièces intimes à l'étage.

  • Échoppe B : travaux05

    La double baie vitrée permet un apport en lumière en profondeur dans la pièce de vie.

  • Échoppe B : vue d\'ensemble01
  • Échoppe B : Adrien (21)-small

    copyright Michaël Korchia photographe
    La terrasse est terminée. Un pan incliné en polycarbonate a été rajouté en sous-face du solarium pour permettre l'étanchéité de la terrasse.

  • Échoppe B : image_projet_mini_50430

    copyright Michaël Korchia photographe

Trouvez un architecte pour votre projet

Protection de vos données personnelles

Depuis toujours, architectes-france.com ne transfère aucune donnée personnelle à d'autres acteurs que ceux directement concernés par le projet (architectes, architectes d'intérieur...) et qui appartiennent à son réseau. Nos listes ne sont jamais transmises ou vendues à des partenaires extérieurs, même si ceux-ci appartiennent au domaine de la construction.
Toute modification dans ce domaine ne serait effectuée qu'avec votre consentement.

Je consens à ce que mes données personnelles soient collectées pour permettre à architectes-france de transférer votre projet aux architectes. Seul Architectes-france, ses équipes internes et la maitrise d'oeuvre concernée par le projet y ont accès. Aucune transmission de données à des tiers à l'exclusion de ceux décrits ci dessus n'est réalisée.

Mes données téléphoniques seront uniquement utilisées par Architectes-france.com et les architectes de notre réseau dans le cadre de la qualification et du suivi de mon projet.

Les données sont conservées pendant une durée de 18 mois courant à partir des derniers contacts effectifs entre architectes-france et vous ou architectes-france et un membre de la maitrise d'oeuvre en rapport avec ce projet et qui serait en relation avec architectes-france.

Conformément à la loi « informatique et libertés », vous pouvez exercer votre droit d'accès aux données vous concernant et les faire rectifier en contactant : Architectes-france, 23 avenue du Mirail - parc du Mirail - 33370 Artigues-près Bordeaux. Tél. 05.47.74.51.01 - contact@architectes-france.com

Trouvez un architecte pour votre projet

Protection de vos données personnelles

Depuis toujours, architectes-france.com ne transfère aucune donnée personnelle à d'autres acteurs que ceux directement concernés par le projet (architectes, architectes d'intérieur...) et qui appartiennent à son réseau. Nos listes ne sont jamais transmises ou vendues à des partenaires extérieurs, même si ceux-ci appartiennent au domaine de la construction.
Toute modification dans ce domaine ne serait effectuée qu'avec votre consentement.

Je consens à ce que mes données personnelles soient collectées pour permettre à architectes-france de transférer votre projet aux architectes. Seul Architectes-france, ses équipes internes et la maitrise d'oeuvre concernée par le projet y ont accès. Aucune transmission de données à des tiers à l'exclusion de ceux décrits ci dessus n'est réalisée.

Mes données téléphoniques seront uniquement utilisées par Architectes-france.com et les architectes de notre réseau dans le cadre de la qualification et du suivi de mon projet.

Les données sont conservées pendant une durée de 18 mois courant à partir des derniers contacts effectifs entre architectes-france et vous ou architectes-france et un membre de la maitrise d'oeuvre en rapport avec ce projet et qui serait en relation avec architectes-france.

Conformément à la loi « informatique et libertés », vous pouvez exercer votre droit d'accès aux données vous concernant et les faire rectifier en contactant : Architectes-france, 23 avenue du Mirail - parc du Mirail - 33370 Artigues-près Bordeaux. Tél. 05.47.74.51.01 - contact@architectes-france.com