
Extension C
Réalisation d'une extension bois au sein d'une maison individuelle
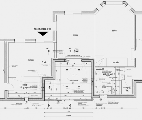
Dans un entre deux, l’extension de cette maison se glisse dans les interstices des volumes existants. Le projet devient l’occasion d’agrandir le salon en y créant un coin télévision/bibliothèque et d’ouvrir ce nouvel espace sur le jardin. La volumétrie extérieure et les ouvertures reprennent l’écriture de la façade actuelle de la maison.
La construction bois est apparue comme une solution adaptée au contexte technique, environnementale et économique. Outre l’ensemble des structures nouvelles en bois, nous avons favorisés l’utilisation de matériaux dans leur aspect brut. A l’intérieur, l’ensemble de l’extension est bardée de panneau OSB, comme un nouveau cocon, cet espace tranche avec le reste des pièces de vie de la maison.
Egalement la salle de bain se voit offrir une seconde jeunesse par une refonte complète de son espace et de ces équipements.