
HOTEL 3*
Rénovation d'un hall, des chambres et du jardin d'un hôtel. Création d'un laboratoire de cuisine et d'un salon de thé. Thème du rêve.....
-
-
Chambre
-
Salle de bains
-
Chambre
-
Chambre
-
Chambre
-
Chambre
-
Chambre
-
Chambre
-
Chambre
-
Chambre
-
Chambre
-
Chambre
-
Chambre
-
Chambre
-
Chambre
-
Chambre
-
Chambre
-
Chambre
-
Chambre
-
Chambre
-
Chambre
-
Chambre
-
Salon de thé
-
Salon de thé-avant
-
Circulation commune
-
Circulation commune
-
Jardin
-
Jardin
-
Jardin
-
Jardin
-
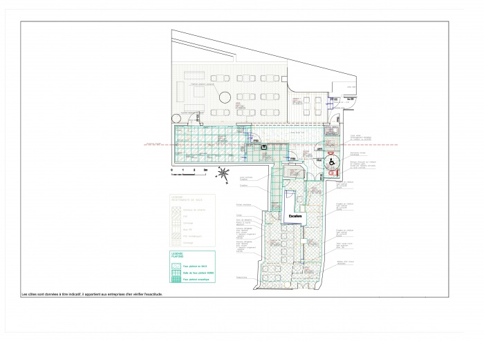
PLAN RDC
-
PLAN SALON DE THE
-
PLAN LABORATOIRE PATISSERIE ET JARDIN
-
PLAN CHAMBRES ETAGE
-
PLAN CHAMBRES ETAGE
Chambre