Menu
Un projet réalisé par :Carole MASSE ARCHITECTE  Architecte à Villenave-d'Ornon

Maison neuve à Villenave d'Ornon

 Villenave-d'Ornon - 33
Carole MASSE ARCHITECTE
Accueil Projets Maison neuve à Villenave d'Ornon

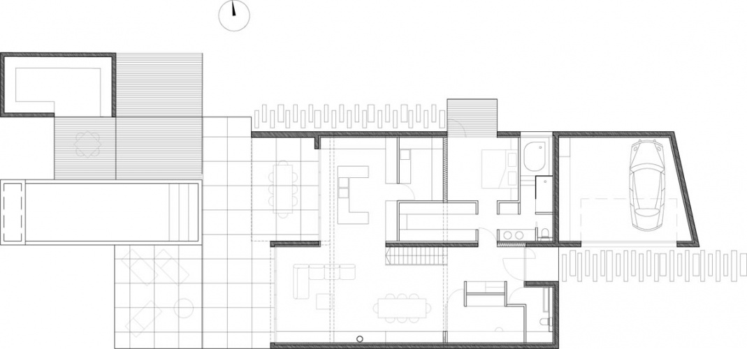
Maison contemporaine à étage partiel composée de toitures terrasses sur différents niveaux. Le volume en maçonnerie propose des creux et des décrochements formant porte-à-faux. Les espaces intérieurs jouent sur la lumière, les vues traversantes et les différences de hauteurs.

Maison neuve à Villenave d'Ornon
  • Maison neuve à Villenave d'Ornon : PLAN RDC 100
  • Maison neuve à Villenave d'Ornon : PLAN ETAGE 100
  • Maison neuve à Villenave d'Ornon : image_projet_mini_99047
  • Maison neuve à Villenave d'Ornon : FACADE EO
  • Maison neuve à Villenave d'Ornon : FACADE SN
  • Maison neuve à Villenave d'Ornon : maquette est
  • Maison neuve à Villenave d'Ornon : maquette ouest
  • Maison neuve à Villenave d'Ornon : VUE SEJOUR EST 017b copie
  • Maison neuve à Villenave d'Ornon : VUE SEJOUR OUEST 017 copie
  • Maison neuve à Villenave d'Ornon : VUE SDB 017 copie
  • Maison neuve à Villenave d'Ornon : porte entrée
  • Maison neuve à Villenave d'Ornon : ouest 2
  • Maison neuve à Villenave d'Ornon : vue terrasse ouest
  • Maison neuve à Villenave d'Ornon : image_projet_mini_99059
  • Maison neuve à Villenave d'Ornon : intérieur

Parlez-moi de votre projet

Carole MASSE ARCHITECTE
Appelez-moi

06 89 59 84 94

Protection de vos données personnelles

Depuis toujours, architectes-france.com ne transfère aucune donnée personnelle à d'autres acteurs que ceux directement concernés par le projet (architectes, architectes d'intérieur...) et qui appartiennent à son réseau. Nos listes ne sont jamais transmises ou vendues à des partenaires extérieurs, même si ceux-ci appartiennent au domaine de la construction.
Toute modification dans ce domaine ne serait effectuée qu'avec votre consentement.

Je consens à ce que mes données personnelles soient collectées pour permettre à architectes-france de transférer votre projet aux architectes. Seul Architectes-france, ses équipes internes et la maitrise d'oeuvre concernée par le projet y ont accès. Aucune transmission de données à des tiers à l'exclusion de ceux décrits ci dessus n'est réalisée.

Mes données téléphoniques seront uniquement utilisées par Architectes-france.com et les architectes de notre réseau dans le cadre de la qualification et du suivi de mon projet.

Les données sont conservées pendant une durée de 18 mois courant à partir des derniers contacts effectifs entre architectes-france et vous ou architectes-france et un membre de la maitrise d'oeuvre en rapport avec ce projet et qui serait en relation avec architectes-france.

Conformément à la loi « informatique et libertés », vous pouvez exercer votre droit d'accès aux données vous concernant et les faire rectifier en contactant : Architectes-france, 23 avenue du Mirail - parc du Mirail - 33370 Artigues-près Bordeaux. Tél. 05.47.74.51.01 - contact@architectes-france.com

Parlez-moi
de votre besoin
Appelez-moi

06 89 59 84 94

Protection de vos données personnelles

Depuis toujours, architectes-france.com ne transfère aucune donnée personnelle à d'autres acteurs que ceux directement concernés par le projet (architectes, architectes d'intérieur...) et qui appartiennent à son réseau. Nos listes ne sont jamais transmises ou vendues à des partenaires extérieurs, même si ceux-ci appartiennent au domaine de la construction.
Toute modification dans ce domaine ne serait effectuée qu'avec votre consentement.

Je consens à ce que mes données personnelles soient collectées pour permettre à architectes-france de transférer votre projet aux architectes. Seul Architectes-france, ses équipes internes et la maitrise d'oeuvre concernée par le projet y ont accès. Aucune transmission de données à des tiers à l'exclusion de ceux décrits ci dessus n'est réalisée.

Mes données téléphoniques seront uniquement utilisées par Architectes-france.com et les architectes de notre réseau dans le cadre de la qualification et du suivi de mon projet.

Les données sont conservées pendant une durée de 18 mois courant à partir des derniers contacts effectifs entre architectes-france et vous ou architectes-france et un membre de la maitrise d'oeuvre en rapport avec ce projet et qui serait en relation avec architectes-france.

Conformément à la loi « informatique et libertés », vous pouvez exercer votre droit d'accès aux données vous concernant et les faire rectifier en contactant : Architectes-france, 23 avenue du Mirail - parc du Mirail - 33370 Artigues-près Bordeaux. Tél. 05.47.74.51.01 - contact@architectes-france.com