Menu
Un projet réalisé par :Goulet Lambart architectes  Architecte à Baden

Mini / Maxi

 Baden - 56
Goulet Lambart architectes
Accueil Projets Mini / Maxi

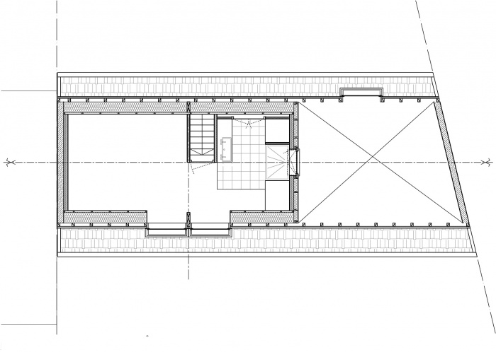
maison individuelle ossature bois & maçonnerie
2 niveaux + combles habités
1 préau en triple hauteur

Mini / Maxi

Le lotissement et la prairie
Le projet se situe dans un lotissement récent de la commune installé en contrebas du bourg, contre une zone naturelle (prairie humide et bosquets).
Il investit la parcelle dans toute sa largeur, et fait frontière entre partie Nord publique, et partie Sud intime,
Si la maison tend à se fondre dans le paysage du lotissement (façade maçonnée enduite et induite par le reglement), elle s’ouvre généreusement sur la prairie au sud (charpente / façade bois et principe d’ espaces tampons, extensibles et intermédiaires)

Mini / Maxi
Ce projet très économique propose des espaces minimums qui associés entre eux deviennent maximums .
2 volumes juxtaposés s’ouvrent généreusement sur le paysage :
- les pièces de vie sur 2 niveaux + combles (2/3 du volume).
- auxquelles s’adosse un ‘jardin d’hiver», préau clos et non isolé en triple hauteur (1/3 du volume).
Pour optimiser les surfaces, les zones techniques et l’entrée de la maison sont concentrées dans le préau.
Au RDC, le préau s’ouvre totalement sur la pièce de vie et le jardin ; au R+1 la moitié du préau est une mezzanine (buanderie) qui s’ouvre sur la salle de bain, le vide est comblé par un trampoline.
les lieux de vie sont élastiques et une multiplicités d’usages varient selon des temps longs (les saisons) et des temps courts (la journée, le week end). Le préau est un lieu évolutif et appropriable, «à bricoler soi-même».

  • Mini / Maxi : BAD_entrée
  • Mini / Maxi : image_projet_mini_76316
  • Mini / Maxi : BAD_jardin3
  • Mini / Maxi : image_projet_mini_76322
  • Mini / Maxi : BAD_préau2
  • Mini / Maxi : BAD_préauRDC1
  • Mini / Maxi : BAD_séjour1
  • Mini / Maxi : BADEN PLAN RDC
  • Mini / Maxi : BADEN PLAN R1
  • Mini / Maxi : BADEN PLAN R2

Trouvez un architecte pour votre projet

Protection de vos données personnelles

Depuis toujours, architectes-france.com ne transfère aucune donnée personnelle à d'autres acteurs que ceux directement concernés par le projet (architectes, architectes d'intérieur...) et qui appartiennent à son réseau. Nos listes ne sont jamais transmises ou vendues à des partenaires extérieurs, même si ceux-ci appartiennent au domaine de la construction.
Toute modification dans ce domaine ne serait effectuée qu'avec votre consentement.

Je consens à ce que mes données personnelles soient collectées pour permettre à architectes-france de transférer votre projet aux architectes. Seul Architectes-france, ses équipes internes et la maitrise d'oeuvre concernée par le projet y ont accès. Aucune transmission de données à des tiers à l'exclusion de ceux décrits ci dessus n'est réalisée.

Mes données téléphoniques seront uniquement utilisées par Architectes-france.com et les architectes de notre réseau dans le cadre de la qualification et du suivi de mon projet.

Les données sont conservées pendant une durée de 18 mois courant à partir des derniers contacts effectifs entre architectes-france et vous ou architectes-france et un membre de la maitrise d'oeuvre en rapport avec ce projet et qui serait en relation avec architectes-france.

Conformément à la loi « informatique et libertés », vous pouvez exercer votre droit d'accès aux données vous concernant et les faire rectifier en contactant : Architectes-france, 23 avenue du Mirail - parc du Mirail - 33370 Artigues-près Bordeaux. Tél. 05.47.74.51.01 - contact@architectes-france.com

Trouvez un architecte pour votre projet

Protection de vos données personnelles

Depuis toujours, architectes-france.com ne transfère aucune donnée personnelle à d'autres acteurs que ceux directement concernés par le projet (architectes, architectes d'intérieur...) et qui appartiennent à son réseau. Nos listes ne sont jamais transmises ou vendues à des partenaires extérieurs, même si ceux-ci appartiennent au domaine de la construction.
Toute modification dans ce domaine ne serait effectuée qu'avec votre consentement.

Je consens à ce que mes données personnelles soient collectées pour permettre à architectes-france de transférer votre projet aux architectes. Seul Architectes-france, ses équipes internes et la maitrise d'oeuvre concernée par le projet y ont accès. Aucune transmission de données à des tiers à l'exclusion de ceux décrits ci dessus n'est réalisée.

Mes données téléphoniques seront uniquement utilisées par Architectes-france.com et les architectes de notre réseau dans le cadre de la qualification et du suivi de mon projet.

Les données sont conservées pendant une durée de 18 mois courant à partir des derniers contacts effectifs entre architectes-france et vous ou architectes-france et un membre de la maitrise d'oeuvre en rapport avec ce projet et qui serait en relation avec architectes-france.

Conformément à la loi « informatique et libertés », vous pouvez exercer votre droit d'accès aux données vous concernant et les faire rectifier en contactant : Architectes-france, 23 avenue du Mirail - parc du Mirail - 33370 Artigues-près Bordeaux. Tél. 05.47.74.51.01 - contact@architectes-france.com