
Rénovation d'une maison et aménagement de son extension ( projet en cours )
Nantes - 44Les axes sur lesquels repose le projet sont :
- La rénovation intérieure de la maison.
- la création d'une extension dans un hangar existant.
Les axes sur lesquels repose le projet sont :
- La rénovation intérieure de la maison.
- la création d'une extension dans un hangar existant.
-
-
Façade sur cour : après
-
Façade sur cour : après
-
Intérieur extension
-
Façade hangar existant
-
Façade hangar existant
-
Façade sur cour projet
-
Façade sur cour extension
-
Plans RDC et étage existant
-
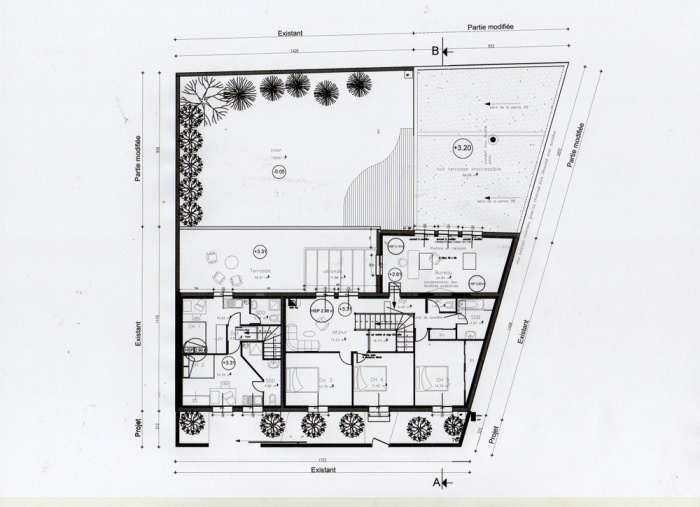
Plan RDC projet
-
Plan étage projet
-
Coupe projet extension
Façade sur rue : après